Die Beratung: Ihre Idee und unsere Kreativität.
Am Anfang stehen Sie mit einer Idee oder einem Vorhaben. Schon der erste Kontakt kann uns inspirieren. Wir greifen Ihre Idee auf, lernen Ihr Vorhaben kennen und denken uns in das Projekt hinein.
Denn Standard kann jeder. Wir möchten exakt die Raumlösung anbieten, die Ihren Vorstellungen und/oder Ihrem Vorhaben zu 100 Prozent gerecht wird. Darum nehmen wir uns besonders für die Beratung mit Ihnen gemeinsam viel Zeit, natürlich gern bei Ihnen vor Ort.
Wir haben zwei Möglichkeiten:
Sie nennen uns Ihre zwingenden Eckdaten und haben exakte Vorstellungen vom gewünschten Modulcontainer. In diesem Fall zeichnen wir es mittels 3D-Planungsprogramm und setzen Ihre Vorgaben in unser Firmensystem um. Nach Freigabe wird Ihr Container schließlich für Sie gefertigt und pünktlich geliefert, inklusive aller Nebenleistungen versteht sich.
Die zweite Möglichkeit basiert auf Ihrem Wunsch und unseren Ideen. In diesem Fall planen wir zunächst einen Container, lassen Ergebnisse unserer ständigen Marktbeobachtung in die Planung einfließen und statten ihn so aus, wie es Ihrem unternehmerischen Anspruch am nächsten kommt. Das setzt natürlich ein hohes Maß an Kreativität, Intuition sowie Identifikation mit Ihnen, unserem Kunden, voraus.
Wir bringen Leben in die Planung
Ihr Container oder Ihre Module werden von uns mittels 3D-Programm entworfen und geplant, und das sogar inklusive Innenausstattung. Sie erhalten auf diese Weise einen realistischen Eindruck von Ihrem Projekt, können Proportionen erkennen und direkt Einfluss nehmen. Wir nennen das Zusammenarbeit auf höchstem Niveau.

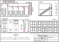
Planung Bürogebäude

Planung Messemodule
Wir kommen zu Ihnen.
Wir verstehen uns als Dienstleister rund um Ihre Container-Anlage, Ihren Bürocontainer oder Ihren Eventcontainer. Darum kommen wir zur Beratungen selbstverständlich zu Ihnen.
Das ist vom Sitz Ihres Unternehmens unabhängig. Wenn Sie einen ersten Eindruck von uns erhalten möchten, sind Sie in unserem Hause natürlich herzlich willkommen. Wir zeigen Ihnen Musterobjekte und führen Sie gern über unser Firmenareal.
MBN Modulwelt GmbH:
Wir planen auch Kindergarten-Container für Braunschweig.
MBN Modulwelt: das Rundum-Sorglos-Paket.
Sie sollen von uns alle Leistungen rund um Ihren Container aus einer Hand erhalten. Was also können wir für Sie tun?
- Beratung
- Planung (3D)
- Ausführung
- Anlieferung
- Montage
- Anschluss
- Wartung
- Abholung
- etc.
Wenn Sie eine Container-Anlage benötigen, die über einen längeren Zeitraum Bestand haben soll, unterstützen wir Sie mit Unterlagen für Ihren Bauantrag.
Hinweis: Wird eine Container-Anlage über einen längeren Zeitraum benutzt, muss sie der aktuellen EinergieEinsparVerordnung für Projektbau entsprechen. Auch darauf achten wir selbstverständlich. Lassen Sie sich beraten.












